Vorige | Volgende

Zuster Joustrastraat 8 Putten

Bewaar object
Deze woning is verkocht

Omschrijving

RUIME ENERGIEZUINIGE HOEKWONING MET DUBBELE OPRIT EN GARAGE/BERGING

Op een prachtige locatie aan de rand van de nieuwe wijk Rimpeler staat deze ruime gasloze en zeer energiezuinige hoekwoning met dubbele oprit en garage/berging gesitueerd op een fraai perceel van circa 235m².

De woning ligt aan het Rimpelererf dat de overgang vormt van de nieuwbouwwijk naar het achterliggende agrarische landschap. Het Rimpelererf kenmerkt zich door een erf met open en groene overgangen naar het omliggende landschap. Het buitengebied van Putten bestaat uit veel boererven. Het Rimpelererf is ook zo opgebouwd, maar dan helemaal nieuw. De woningen die worden gebouwd in deze fase krijgen allemaal de kenmerken die passen bij erfwoningen, zoals de luiken, dakkapelletjes en speelse kapconstructie.

Deze hoekwoning heeft een gebruiksoppervlakte wonen van circa 148m²; veel ruimte dus! De 1e etage telt drie ruime slaapkamers en de 2e etage is volledig naar eigen wens in te richten. Aan de zijkant van de woning bevindt zich een stenen garage/berging (circa 2.90m x 5.84m). Verder is parkeren op eigen terrein geen probleem: de oprit biedt voldoende ruimte om 2 auto's te parkeren! De achtertuin is bereikbaar langs de garage/berging. Vanuit de tuin heeft u zicht op de prachtige bomenrij van de Rimpelerweg.

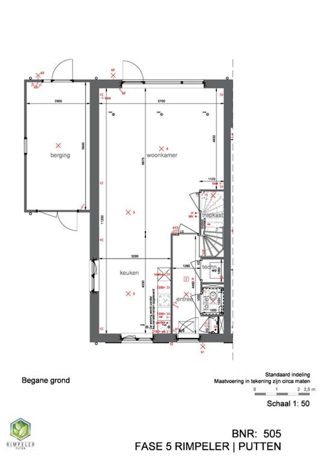
Indeling:
Begane grond: entree/hal, meterkast, toiletruimte, technische ruimte, trapopgang naar 1e etage, ruime woonkamer met grote raampartij aan de achterzijde en voorzien van vaste kast, open keukenruimte aan de voorzijde van de woning. Vanuit de woonkamer direct toegang tot de achtertuin. Aan de zijkant van de woning is de garage/berging gesitueerd; deze is toegankelijk vanaf de oprit of vanuit de achtertuin.
1e etage: overloop, 1e slaapkamer (ca. 18m²) gesitueerd aan de achterzijde van de woning, 2e slaapkamer (ca. 12m²) gesitueerd aan de zijkant van de woning, 3e slaapkamer (ca. 15m²) en de badkamer bevinden zich aan de voorzijde van de woning.
2e etage: open zolderruimte voorzien van 2 dakramen.

Bijzonderheden:
- Hoekwoning met dubbele oprit en garage/berging;
- Twee parkeerplaatsen op eigen terrein;
- Volledig gasloos en zeer energiezuinig;
- Gebruiksoppervlakte wonen ca. 148m²;
- Oplevering zonder keuken;
- Oplevering met sanitair en tegelwerk;
- Situering achtertuin op het oosten;
- Op loopafstand van het NS station;
- Prognose oplevering: eind 3e kwartaal 2023.

Spreekt het ‘erfwonen’ u aan en voldoet deze hoekwoning aan uw woonwensen? Neem contact op met één van de makelaars van Het Geldersch Huys Makelaars of Boerstaete Makelaardij voor een vrijblijvend gesprek. Wij informeren u graag verder over deze prachtige hoekwoning en de aangename ligging.

Bouwnummer 505 - Rimpelererf
Perceeloppervlakte 235m²
Koopsom € 583.000,- v.o.n.
Lees de volledige omschrijving

Kenmerken

Overdracht

Aanvaarding
in overleg

Bouw

Soort woning
eengezinswoning
Type woning
hoekwoning
Soort bouw
nieuwbouw
Bouwjaar
2022
In aanbouw
nee

Details

Ligging
aan rustige weg, beschutte ligging, in woonwijk
Permanente bewoning
ja
Daktype
zadeldak

Oppervlakten en inhoud

Woonoppervlakte
148 m²
Perceel
235 m²
Inhoud
444 m³

Indeling

Aantal kamers
6
Aantal slaapkamers
3
Aantal etages
3
Aantal badkamers
1
Keuken type
open keuken

Isolatie en verwarming

Isolatievormen
dakisolatie, dubbel glas, muurisolatie, vloerisolatie, volledig geisoleerd
Soort verwarming
vloerverwarming geheel
Warmwater installatie
aardwarmte

Kadastrale gegevens

Kadastrale aanduiding
Putten N 5829
Oppervlakte
235 m²
Eigendomssituatie
volle eigendom

Buitenruimte

Tuintype(n)
achtertuin, voortuin, zijtuin
Hoofdtuin type
achtertuin
Hoofdtuin oppervlakte
77 m²
Hoofdtuin achterom
ja
Ligging hoofdtuin
zuidoost

Garage

Garagesoorten
aangebouwd steen
Capaciteit
1
Aantal
1
Voorzieningen
verwarming

Parkeergelegenheid

Faciliteit
op eigen terrein
Bekijk alle kenmerken

Alle foto's

Deel dit object